

r82 ärihoone tartus, tammetõru tn. 11 avatakse 2026 aastal
Pakkuda A-energiaklassiga üüripinnad suurusega 120 – 800 m2
r82 ärihoone tartus, tammetõru tn. 11 avatakse 2026 aastal
Pakkuda A-energiaklassiga üüripinnad suurusega 120 – 800 m2
R82 ärikeskus Tartu ringtee ääres. 1 etapp valmib juba 2026 aastal!


Keskuses on 5 685 m² üüripinda. Esimesele korrusele tulevad suurte klaasfassaadidega avarad kaubandus- teenindus- ja laopinnad. Rajatavad üüripinnad on suurusega 120 – 822 m².
Ruumilahenduse osas on võimalik varajastel üüripinna broneerijatel teha muudatusi vastavalt enda soovidele. Nii on võimalik ehituse käigus ühendada erinevaid ruume ja muuta siseseinte paigutust.
Ruumide suurused on eelduslikud ja üürileandja jätab endale kuni üürilepingu sõlmimiseni õiguse ehituse käigus neid muuta.
Keskuses on 5 685 m² üüripinda. Esimesele korrusele tulevad suurte klaasfassaadidega avarad kaubandus- teenindus- ja laopinnad. Rajatavad üüripinnad on suurusega 120 – 822 m².
Ruumilahenduse osas on võimalik varajastel üüripinna broneerijatel teha muudatusi vastavalt enda soovidele. Nii on võimalik ehituse käigus ühendada erinevaid ruume ja muuta siseseinte paigutust.
Ruumide suurused on eelduslikud ja üürileandja jätab endale kuni üürilepingu sõlmimiseni õiguse ehituse käigus neid muuta.
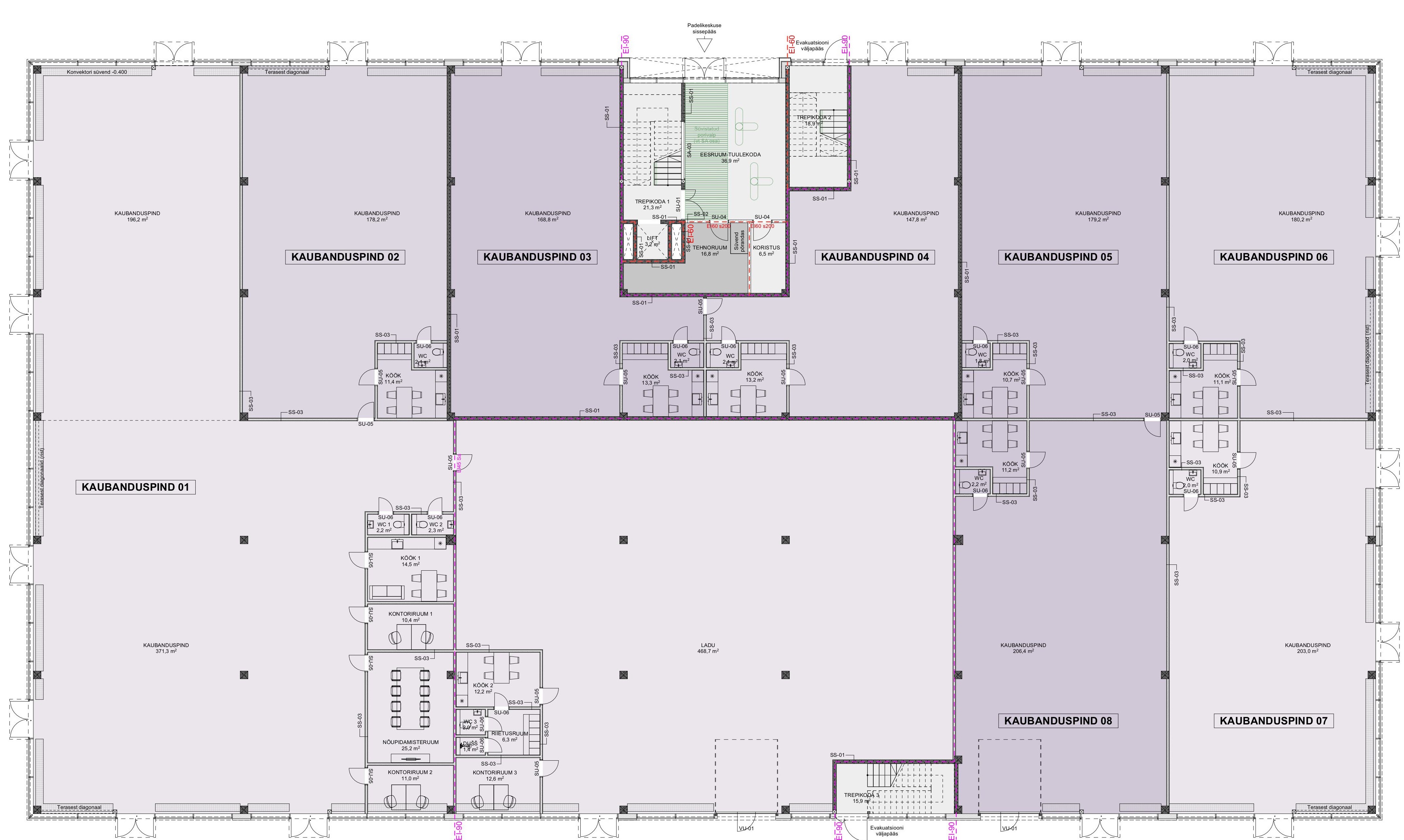
Hoone 2. korrusele rajatakse seitsme kvaliteetse ja tänapäevase siseväljakuga, rahvusvahelistele standarditele vastav Padelikeskus.
Uue keskuse rajamisel on mõeldud nii autojuhtidele kui ka jalgratturitele, rohkelt parkimispaikasid on loodud kõigile.
Hoone 2. korrusele rajatakse seitsme kvaliteetse ja tänapäevase siseväljakuga, rahvusvahelistele standarditele vastav Padelikeskus.
Uue keskuse rajamisel on mõeldud nii autojuhtidele kui ka jalgratturitele, rohkelt parkimispaikasid on loodud kõigile.

Pildid on illustratiivsed
Pildid on illustratiivsed
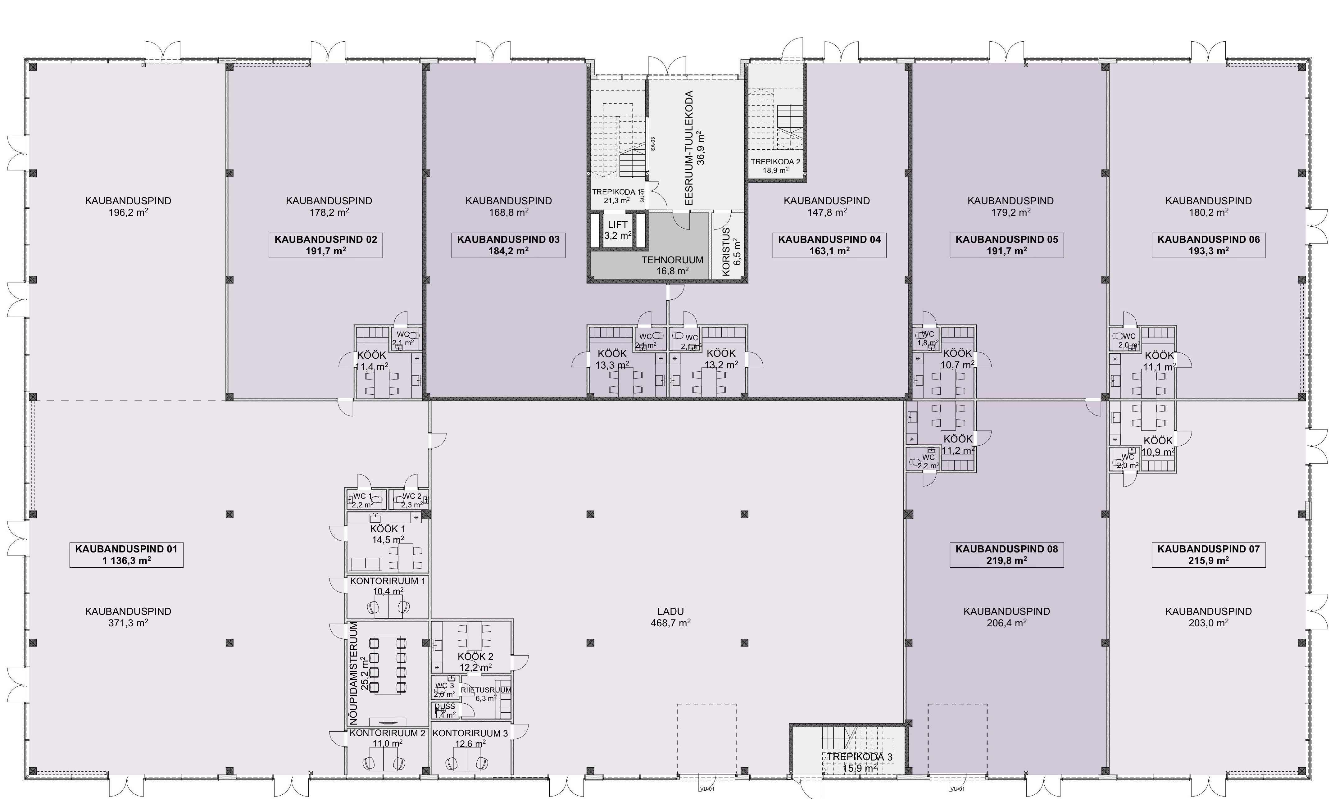
plaan ja hinnad
leia endale sobiv pind!
1 Korrus | Pindala | Hind |
|---|---|---|
1136.3 m² | Broneeritud | |
191.7 m² | 3100 €/kuu | |
184.2 m² | 3200 €/kuu | |
163.1 m² | 2800 €/kuu | |
191.7 m² | 3200 €/kuu | |
193.3 m² | Broneeritud | |
215.9 m² | 3700 €/kuu | |
219.8 m² | 3400 €/kuu |
1 Korrus | Pindala | Hind |
|---|---|---|
1136.3 m² | Broneeritud | |
191.7 m² | 3100 €/kuu | |
184.2 m² | 3200 €/kuu | |
163.1 m² | 2800 €/kuu | |
191.7 m² | 3200 €/kuu | |
193.3 m² | Broneeritud | |
215.9 m² | 3700 €/kuu | |
219.8 m² | 3400 €/kuu |
Äripind 1
Äripind 2
Äripind 3
Äripind 4
Äripind 5
Äripind 7
Äripind 8
Äripind 6
*Hind ei sisalda käibemaksu


Vajuta plaanile, et valida äripind. Vajuta uuesti, et kuvada info.
Asukoht
R82 on atraktiivseks asukohaks kaubandusettevõtetele, paiknedes vahetult Tartu ringtee ääres, on hästi maanteelt vaadeldav ning omab suurepärast ligipääsu.
Transpordiameti andmetel möödub keskusest enam kui 20 000 sõidukit päevas.
R82 on atraktiivseks asukohaks kaubandusettevõtetele, paiknedes vahetult Tartu ringtee ääres, on hästi maanteelt vaadeldav ning omab suurepärast ligipääsu.
Transpordiameti andmetel möödub keskusest enam kui 20 000 sõidukit päevas.
R82 keskuse juures on enam kui 100 parkimiskohta, tagades külastajatele alati mugava ja kiire ligipääsu.
Parklaplaani lahenduse leiab siit:
R82 keskuse juures on enam kui 100 parkimiskohta, tagades külastajatele alati mugava ja kiire ligipääsu.
Parklaplaani lahenduse leiab siit:
parkla
parkla
Meist
Ehitaja
Mapri Ehitus on pea 20-aastase kogemuspagasiga Eesti ehitusettevõte, kes pakub täisteenust projekteerimisest kuni võtmed-kätte lahendusteni. Ettevõte on tuntud kvaliteetse teostuse, usaldusväärse projektijuhtimise ning kaasaegsete ja kestlike ehituslahenduste poolest nii elu- kui ka ärikinnisvara valdkonnas.
Mapri Ehitus on pea 20-aastase kogemuspagasiga Eesti ehitusettevõte, kes pakub täisteenust projekteerimisest kuni võtmed-kätte lahendusteni. Ettevõte on tuntud kvaliteetse teostuse, usaldusväärse projektijuhtimise ning kaasaegsete ja kestlike ehituslahenduste poolest nii elu- kui ka ärikinnisvara valdkonnas.
Arhitekt
Arendaja
Arhitektuurse lahenduse on loonud rahvusvaheliselt tunnustatud arhitektuuribüroo HG Arhitektuur, kelle töid iseloomustab selge vormikeel, funktsionaalsus ja keskkonnatundlik lähenemine. HGA arhitektid ühendavad oma projektides kaasaegse arhitektuuri, kasutajasõbraliku ruumilahenduse ja pikaajalise väärtuse loomise. HG Arhitektuur tuntumad tööd on näiteks Eesti rahvamuuseum (koos Dorell.Ghotmeh.Tane Architects tiimiga), Rotermanni Vana ja Uus Jahuladu, aga ka mitmed tunnustatud korterelamuid ja äripindasid Tartus, Tallinnas ja Pärnus.
R82 Ärikeskuse arendajal on pikk kogemus äripindade loomisega erinevates Eesti linnades. Meie eesmärk on luua läbimõeldud ja kliendisõbralike lahendusi, et pakkuda parimaid võimalusi just Sinu ärile.
Arendaja
Arhitekt
R82 Ärikeskuse arendajal on pikk kogemus äripindade loomisega erinevates Eesti linnades. Meie eesmärk on luua läbimõeldud ja kliendisõbralike lahendusi, et pakkuda parimaid võimalusi just Sinu ärile.
Arhitektuurse lahenduse on loonud rahvusvaheliselt tunnustatud arhitektuuribüroo HG Arhitektuur, kelle töid iseloomustab selge vormikeel, funktsionaalsus ja keskkonnatundlik lähenemine. HGA arhitektid ühendavad oma projektides kaasaegse arhitektuuri, kasutajasõbraliku ruumilahenduse ja pikaajalise väärtuse loomise. HG Arhitektuur tuntumad tööd on näiteks Eesti rahvamuuseum (koos Dorell.Ghotmeh.Tane Architects tiimiga), Rotermanni Vana ja Uus Jahuladu, aga ka mitmed tunnustatud korterelamuid ja äripindasid Tartus, Tallinnas ja Pärnus.

KA Varad OÜ
Lääneringtee 50, Tartu
Võta ühendust
Nils Kasak
Jaanus Pettai
+372 56 66 00 75
+372 58 19 10 89

KA Varad OÜ
Lääneringtee 50, Tartu
Võta ühendust